vol.7 築49年の中古戸建てが大変身!リノベの全貌を解説します!
築49年の中古戸建を新築の住宅性能と同等まで向上させるK様邸のリノベーション。
とうとうお住まいが完成しました。今回は写真とともにプランのポイントやおうちの見どころをご紹介します。
◆vol.1 フラット35(リフォーム一体型)を利用して…わくわくどきどき…夢をかなえるリノベのはじまり!
◆vol.2 スタイル工房の戸建リノベ性能アップ工事の全貌をご紹介!前編
◆vol.3 スタイル工房の戸建リノベ性能アップ工事の全貌をご紹介!後編
◆vol.4 職人さんたちの仕事をご紹介!前編
◆vol.5 職人さんたちの仕事をご紹介!後編
◆vol.6 もうすぐ完成!社内検査と第三者機関の検査も。あらゆる人が検査を実施
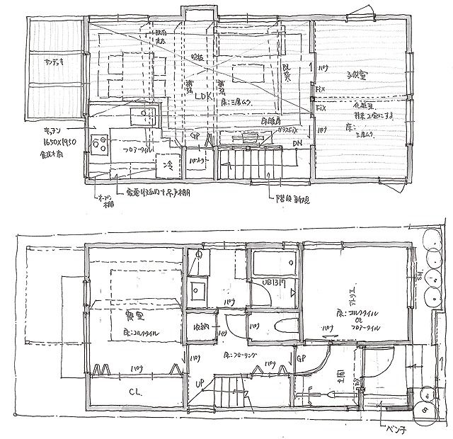
◆玄関周りを安全に使いやすく!パブリックとプライベートをわけるプラン
もともとのお家は玄関が道路の目の前にあり、玄関をあけるとすぐ車道で子どもたちにも危険で生活するうえでも屋根もなくつかいにくい状態でした。そこで減築をして屋根のある玄関ポーチをつくりました。
このポーチがあることで、雨の日でも濡れるのを気にせず玄関を出ることができてとても便利に。お子さんが玄関をあけて道路へ飛び出してしまうなんてことも防止できて安心です。
玄関ポーチの横には趣味や仕事のためのアトリエを用意。玄関から直接アプローチができるようにしているので、例えば将来お店を開くなんてことも可能にしています。1階はそのアトリエと水回りをはさんで、プライベートな空間の寝室が。パブリックなところ・プライベートなところを上手に区分けして計画をしました。
◆開放感あふれる2階リビング! 大きな室内窓も
ご家族の住まいのイメージは、できるだけ広いリビングと子供たちがのびのびと暮らせる家。今回の建物は囲まれた環境に建っていたので、明るかった2階にLDKを持ってきて、天井の高さを上げることで実際より広く感じられるようなプランニングをしています。
この古い丸太の梁はもともとあったもの。天井をあげて古い梁をみせるこういったデザインは、新築では手に入れることのできないものです。年月を経た風合いのある梁が築49年の歴史を感じさせてくれます。もちろん断熱もしっかり行い、勾配天井にはたっぷりの収納量のロフトもつくりました。
リビングに上がる階段室には、大きな室内窓をつけました。階段や廊下が明るくなり、リビングのアクセントにもなっています。
リビングからフラットに続くウッドデッキも新しく設置。ウッドデッキとつながりができたことで、お部屋がさらに広々と感じられます。ウッドデッキを作ると、1階の寝室に面したお庭が暗くなるのではとお客様は心配されていましたが、ウッドデッキをスノコ状にして光や風は入るように工夫したこと、さらに寝室の窓を大きなものに変更したことで暗さも気になりません。
キッチンはK様こだわり仕様。今回は、天板がステンレスのIKEAのものを使用しました。奥の壁は白い大きめのタイルでシンプルなデザインに。家電収納の上には木の棚をつけて、ぬくもりもプラスしています。腰壁もモールテックスという割れないモルタルをつかっています。
キッチンに立つと、正面には新しい窓からの景色を見ることができます。こちらは、建物のないスペースから近くの桜並木が見える、光や風も通り抜ける重要な窓です。新たな窓はお隣の家と被らないように配置し、テレビボードを置く予定の壁の上部にはハイサイドライトという高い位置の窓をつけました。通風や採光を確保しながら、プライベート性も確保しています。
◆自然素材をたっぷり使って、安心安全な住まいへ。施主によるDIYも!

K様邸の内装は、壁には全面に漆喰を使用。1階の床はオークの無垢材、2階は床暖房対応の3層フローリングを使用しました。どちらもオーク材で、落ち着いた雰囲気を作っています。アトリエや寝室には、手作りのお好きなK様自身が塗装を施主施工で行いました。ほかにもスイッチや照明など、こだわって選んだ小物がそこかしこに取り付けられたお家になっています。
これからご家族がお引越しをされて新生活がスタートします。シンプルにつくったこちらのお家、ご家族の荷物や家具が入ると、またガラリと雰囲気が変わるはず。お引っ越し後の落ち着いたころ、カメラマンさんと撮影にお伺いするのがとっても楽しみです!
■『よみがえった築49年の家』シリーズ一覧■
vol.1 フラット35(リフォーム一体型)を利用して…わくわくどきどき…夢をかなえるリノベのはじまり!
vol.2 スタイル工房の戸建リノベ性能アップ工事の全貌をご紹介!前編
vol.3 スタイル工房の戸建リノベ性能アップ工事の全貌をご紹介!後編
vol.4 職人さんたちの仕事をご紹介!前編
vol.5 職人さんたちの仕事をご紹介!後編
vol.6 もうすぐ完成!社内検査と第三者機関の検査も。あらゆる人が検査を実施
vol.7 築49年の中古戸建てが大変身!リノベの全貌を解説します!】
vol.8 遂に完成!築49年の中古戸建のリノベーション、お施主様インタビュー






















